Роман Бусаргин: «Первый аукцион на жилую застройку старого аэропорта стартует в июле»

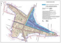
«В июле этого года планируем объявить аукцион на застройку первого участка территории бывшего аэропорта общей площадью 161,7 га, примыкающего к поселку Новосоколовогорский.

«В июле этого года планируем объявить аукцион на застройку первого участка территории бывшего аэропорта общей площадью 161,7 га, примыкающего к поселку Новосоколовогорский. 

Как и обозначал ранее, вместе с жилыми домами застройщики будут возводить всю социальную инфраструктуру. Конкретно на этом участке речь идет о школе и четырех детских садах. Кроме того, необходимо будет обеспечить достаточное количество парковочных мест. Это обязательные условия, прописанные в контракте. 

В проекте также предусмотрены зеленые зоны. Что касается поликлиники, она будет рассчитана на несколько жилых кварталов, поэтому ее строительство начнется параллельно при застройке других участков. 

Планируется, что высотность жилых зданий в микрорайоне составит до 14 этажей. Дома также будут оборудованы автономным отоплением, что позволит не зависеть от центральной системы теплоснабжения. Для социальных объектов планируется возведение отдельных котельных. 

В настоящее время также подводим к будущему микрорайону коммуникации. Инфраструктурный бюджетный кредит за счет средств федерального бюджета в размере более 6 млрд рублей был выдан на это по решению Президента Владимира Путина. 

Всего по проекту в новом микрорайоне будет построено 

5 школ, 15 детсадов;

Две взрослых и две детских поликлиники, станция скорой помощи;

Школа искусств, библиотека», - сообщил в своём телеграм канале Роман Бусаргин.


Последние новости

Когда робот остановился: причины поломок серводвигателей и способы их спасения

Разбираем слабые места сложной техники и учимся продлевать срок службы приводов

Вздулись конденсаторы? Пора спасать блок питания – что делать и чего не делать

Распухшие детали внутри БП — тревожный сигнал. Разбираемся, как действовать грамотно и не испортить всё окончательно

ПРИОБЩЕНИЕ К БОГАТСТВУ РУССКОЙ КУЛЬТУРЫ И ЛИТЕРАТУРЫ

В балаковской СОШ № 28 состоялся конкурс чтецов Балаковской епархии «Хвалите имя Господне».

Когда скидки превращаются в ловушку: как маркетологи учат нас тратить

Почему “-50% только сегодня” не всегда значит выгоду, как скидки играют на эмоциях и почему даже рациональные люди становятся жертвами маркетинговых трюков.

Здесь вы можете узнать о лучших предложениях и выгодных условиях, чтобы купить квартиру в Севастополе

Комментарии (0)

Добавить комментарий

Ваш email не публикуется. Обязательные поля отмечены *